George Stowell 

Client Adviser | Chartered Architect

ADAPTABLE MODULAR HOMES…

Lead architect: Developer proposal for modular whole life family housing.

Feasibility 2008

Design guidance and concept design for modular housing typologies on large regeneration site in Peterborough for 2,000 family units using modern methods of manufacture and construction. Use of sustainable timber with high levels of insulation and solar heating through large west facing windows that includes external solar control shading. Designs are extendable around a core, double height living hub.

 

Client: Hampton Vale

Cost: Unit sales,  £560,000 to £825,000 (2022)

Sited on previous  brickworks

Concept; open and private domains

Concept; excellent solar access

Concept; glazing with screening

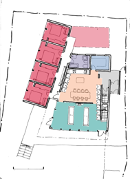
Ground plan

Bedrooms overlook a sheltered garden

Easily extendable bedroom/study modules support different household sizes, offering options for first to third age living.

Double height living area

Each home has the same size living accommodation with semi-private mezzanine work or play area. Step free access to a glass balustraded roof garden.

Controllable facade

Open architecture to entrance elevation has screening secured top and bottom for control over solar gain, heat loss, security and privacy.